営業時間 10:00〜18:00
【※店舗休業日・毎週(水)(日)】
ナニック・ウッドバーチカルブラインドでLDの「間仕切り&空調対策」。

築20年超の注文戸建住宅のご入居時リフォームの際に、「リビング・ダイニング」エリアの装飾・間仕切りとして、ナニックのウッドバーチカルブラインドをご採用いただきました当社納品事例です。
「ダイニング」側から見た、「間仕切り」開閉の様子




こちらは、実際に納めた納品後の様子、採用カラーは「Gシリーズ」ウッドバーチカルブラインドの展開色よりウォルナットです。
ダイニング側から見たウッドバーチカルブラインドの納まりと各操作ごとの表情をご覧いただいてい。
通常、ルーバーは「両開き」により左右に引き分けられていますが、状況に応じてルーバーの角度を自由に開閉させて「間仕切り」としての表情を変えることができます。
開閉タイプは「両開き」以外にも「片開き」をお選びいただくことも可能です。
「リビング」側から見た、「間仕切り」の様子



事例のヒンジ分割タイプは、上下2分割ですが、※現在は3種類のヒンジ分割タイプからお選びいただくようになっています。
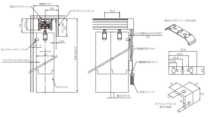
ナニック・『Gシリーズ・ウッドブラインド』のカラーバリエーションは4色で、90mmのルーバーは製作高に応じて分割される「ヒンジ式分割型」となります。
続いて、リビング側から見たウッドバーチカルブラインドの表情。


今回は、「リビング・ダイニング」を区画する『間仕切り』目的で設置しているため、ヘッドレールの前後両面に、「上飾り」を目的とした別注「バランス」を設置しています。
一般的な窓辺で使用する場合であれば片側(室内側)だけで良いのですが、間仕切りの場合はどちらの居室も主役として考え、バランスでヘッドレールを覆います。
以上、本日は、「リビング・ダイニング」を区分する開口に、装飾的な間仕切りとして機能する、ナニック・ウッド・バーチカルブラインドの納品事例をご紹介をさせていただきました。
